• 黄瓜视频看片,91黄瓜在线观看,黄瓜免费视频APP,黄瓜视频正版下载

    全國站[切換城市]
    黄瓜免费视频APP黄瓜视频看片配件_框架、自動化流水線、車間工作台、設備機罩防護圍欄加工定製廠家

    在線留言 網站地圖 聯係黄瓜免费视频APP

    黄瓜免费视频APP

    黄瓜视频看片專業廠家
    4000965058

    猜您想找 :鋁材廠家 91黄瓜在线观看 流水線鋁型材 異型材開模

    當前位置: 首頁 » 新聞資訊 » 常見問答 » 黄瓜视频看片槽寬T型和V型有什麽區別嗎?

    黄瓜视频看片槽寬T型和V型有什麽區別嗎?

    文章出處:   責任編輯:   發布時間:2024-03-11 10:38:28    點擊數:-   【
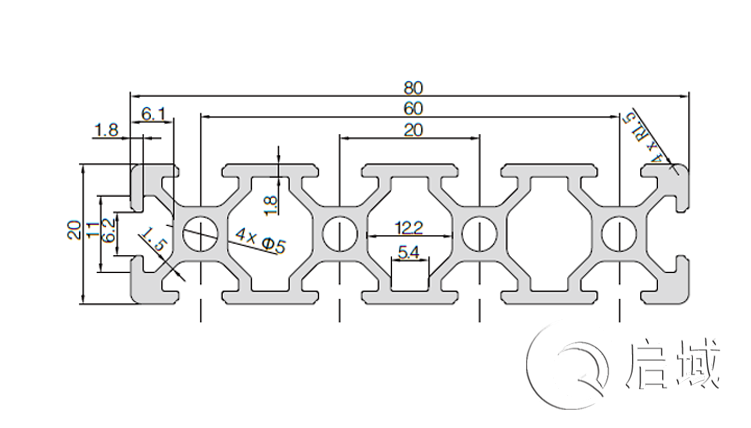
      黄瓜视频看片黄瓜视频看片都知道它有歐標跟國標之分,然後它們的槽寬是有區別的,歐標槽型是梯形,國標槽型是矩形,槽寬不一樣他們使用的配件也是不一樣的。就在前兩天有小夥伴來谘詢黄瓜视频看片槽寬T型與V型有什麽區別?可能有些小夥伴就懵了,這又指的是哪裏呢?下麵就來給大家一一道來。

    91黄瓜在线观看


      當時這個小夥伴來谘詢瞬間也沒能理解,心想槽寬隻有歐標跟國標之分,怎麽還有T型與V型之分呢?後來這位小夥伴將下麵這張圖發過來,材理解他的意思。
      客戶發來的這張圖片,上麵兩個材料皆是屬於歐標2080型材,其實歐標型材它的槽型皆是屬於梯型,大家自己看圖中這個標紅圈的位置,隻是卡配件的位置稍微設計有點小變化,其實客戶就是在問這個位置它兩有什麽區別?


    2080


      通過圖片大家自己一款區別還是蠻大的,這個位置設計的區別其實就是配件使用強度的問題,T型槽使用配件強度要好,V型槽使用強度要弱一點,因為很明顯卡配件的位置要薄點。
      以上這個黄瓜视频看片槽寬的細節,經常使用小夥伴在選型上麵就比較專業,這裏不得在提一下,有很多小夥伴在購買型材的時候就會問為啥你家的要比別人家的貴,一份價錢一份好,細節決定這個型材定製的框架能否使用長久,便宜的東西基本上是有細節變動。

    歐標2080


      大家在來看看上麵這張圖,這是黄瓜免费视频APP的歐標2080型材,槽寬位置就是T型的,這樣設計,使用配件可以增加整個框架的牢固度,大家有興趣可以領域黄瓜免费视频APP樣冊,可以看看裏麵每個產品,皆是T型槽。
      以上是對這篇文章做了簡單介紹,希望文中內容能幫得到大家,上海黄瓜免费视频APP專業生產型材及配件,10餘年的行業經驗,合作企業5000+,自建8000多㎡倉儲基地,現貨庫存高達1000噸,型材材料快至當天發貨,應用定製通常2-3個工作日。1米起訂,免費切割。
    網站地圖